Suche
Ein-/Zweifamilienhaus mit großzü. Garten, Garage sowie abtrennbarem Bauplatz in Edewecht-Osterscheps
26188 Edewecht
Eckdaten
Objektnummer 171649
Baujahr 1977
Wohnfläche 208 m²
Nutzfläche 27 m²
Zimmer 7
Grundstück 1.608 m²
Verfügbar ab nach Absprache
Ihr Ansprechpartner
Vorname Marie
Nachname Steenken
Telefon 00494403933925
E-Mail info@immobilien-friedrichs.de
Kaufpreis 349.000 €
Zusatz inkl. Einbauküchen
Courtage 3,57 % des Kaufpreises inkl. 19,00 % MwSt.
Merkmale
Terrassen 1
Badezimmer 2
Küche 1
Energieausweis
Effizienzklasse F
Energieausweis Verbrauch
Verbrauchskennwert 180,50 kWh/(m² a)
Energieträger Gas
Beschreibung ** Der Energieausweis ist beantragt **
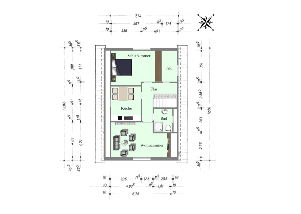
Diese vielseitig nutzbare Immobilie bietet großes Potenzial und befindet sich in ruhiger Wohnlage in Edewecht-Osterscheps. Es eignet sich sowohl als Einfamilienhaus als auch als Zweifamilienhaus. Darüber hinaus besteht die Möglichkeit, eine Teilfläche im rückwärtigen Bereich abzutrennen – beispielsweise zur Eigennutzung oder zur Veräußerung. Im Innenbereich verfügt das Wohnhaus über ein großzügiges Wohn- und Esszimmer mit Zugang zum Wintergarten, der ebenfalls einen direkten Zugang zum rückwärtigen Gartenbereich gewährleistet. Des Weiteren befinden sich im Erdgeschoss die Küche, drei Schlafzimmer, ein neuwertiges Badezimmer, Diele und Windfang mit abgetrenntem Aufgang ins Obergeschoss sowie Heizungsraum, Waschküche und separates WC. Das Obergeschoss wurde von den jetzigen Eigentümern bislang als Kapitalanlage genutzt, bleibt aber bezüglich des Verkaufs vorerst unvermietet. Es bietet Ihnen ein Wohnzimmer, Küche, Schlafzimmer, Abstellraum, Badezimmer und einen Flurbereich mit Zugang zum Dachboden, der Ihnen weitere Abstellmöglichkeiten bietet. Vom Wohnhaus aus erreichen Sie intern die Garage mit Werkstatt. Im Außenbereich befinden sich zusätzlich ein Carport sowie eine Gartenhütte. Der großzügige Gartenbereich erstreckt sich über eine liebevoll angelegte Fläche im vorderen Bereich des Grundstückes sowie eine weitere Fläche im rückwärtigen Bereich.
Lage & Beschreibung
PLZ Ort 26188 Edewecht
Lage Versorgungseinrichtungen des täglichen Bedarfs sind in ca. 5 PKW-Minuten erreichbar.
Ausstattung
Für weitere Details fordern Sie gerne unser ausführliches Exposé an.


info@immobilien-friedrichs.de