Suche
Geräumige, modernisierungsbedürftige DHH mit Keller auf einem Erbbaurechtsgrdst. in Bremen-Neuenland
28199 Bremen
Eckdaten
Objektnummer 210885
Baujahr 1972
Wohnfläche 174 m²
Nutzfläche 78 m²
Zimmer 5
Grundstück 395 m²
Ihr Ansprechpartner
Vorname Stefan
Nachname Hungerland
Telefon 0049440393390
E-Mail info@immobilien-friedrichs.de
Kaufpreis 350.000 €
Courtage 3,57% des Kaufpreises inkl. 19,00% MwSt.
Merkmale
Terrassen 1
Balkone 1
Badezimmer 1
Küche 1
Energieausweis
Effizienzklasse G
Energieausweis Bedarf
Endenergiebedarf 202,60 kWh/(m² a)
Energieträger Oel
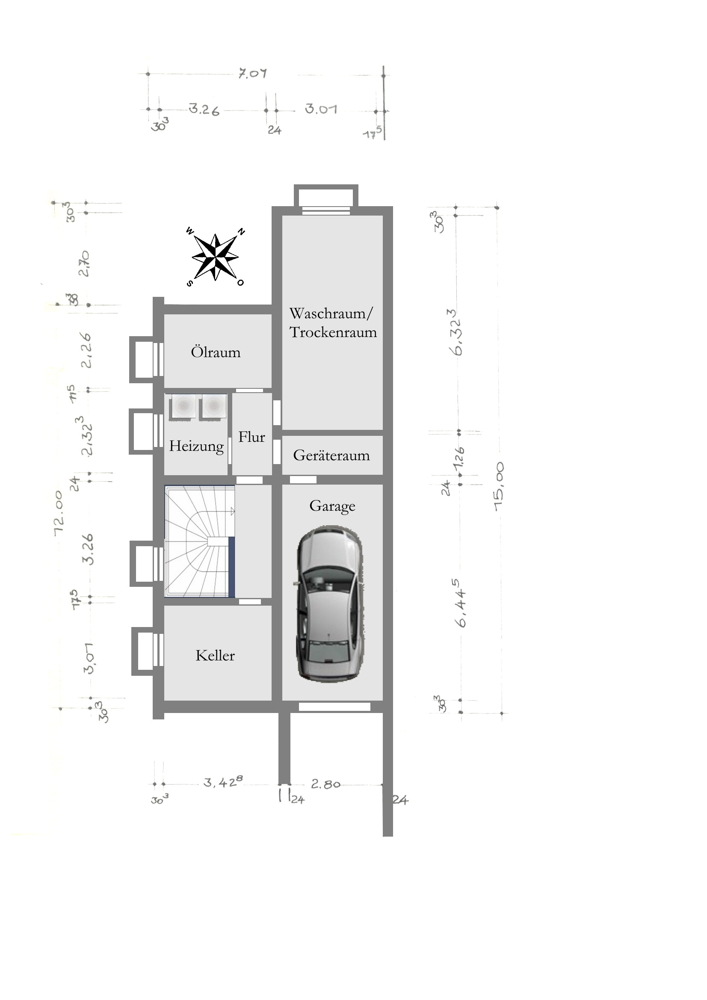
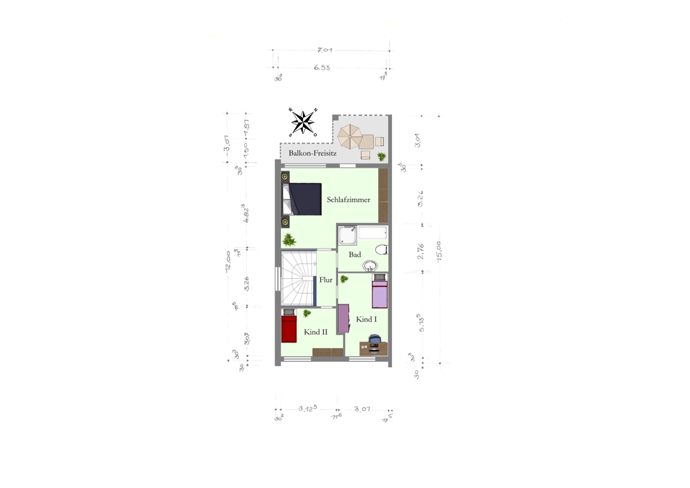
Beschreibung Mit diesem Erbbaurecht haben Sie die Möglichkeit, eine großzügige Doppelhaushälfte in Bremen-Neuenland (Neustadt) ohne einen anteiligen Grundstückskaufpreis aufwänden zu müssen, zu erwerben. Das Wohngebäude wurde 1972 errichtet und überzeugt durch seine solide Bauweise und geräumige und gleichzeitig zweckmäßige Raumaufteilung. Das Erdgeschoss verfügt über das großzügige Wohn- und Esszimmer, Wintergarten, Wohnküche, Eingangsdiele, G-WC, Flur und Treppenaufgang zum Ober- und Dachgeschoss. Im OG befinden sich insgesamt drei Zimmer, das geräumige Vollbad, Flurbereich und der gartenseitige Balkon am Elternzimmer. Im wohnlich gestalteten Dachgeschoss befindet sich ein weiteres Zimmer, Küchenraum sowie ein zweckmäßiges Duschbad. Ausreichend Nutzfläche steht im Vollkeller mit insgesamt ca. 60 m² in verschiedenen Räumen zur Verfügung. Der ebenfalls im Kellerbereich installierte Garagenbereich (ca. 6,20 m x 3,00 m) erweitert Ihre Möglichkeiten. Insgesamt ist die Immobilie als modernisierungswürdig einzustufen.
Lage & Beschreibung
PLZ Ort 28199 Bremen
Lage Sie wohnen in Bremen-Neustadt mit besten Verkehrsanbindungen (B75/A281) und kurzen Entfernungen ins Stadtzentrum.
Ausstattung
Für weitere Details fordern Sie gerne unser ausführliches Exposé an.


info@immobilien-friedrichs.de