Suche
Meerblicklage direkt am Kurpark! Etabliertes Wohn- u. Geschäftshaus im Zentrum von Bad Zwischenahn
26160 Bad Zwischenahn
Eckdaten
Objektnummer 150552-1
Baujahr 1909
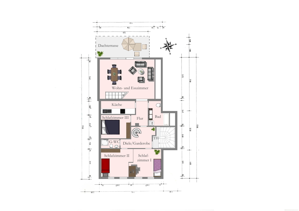
Wohnfläche 122 m²
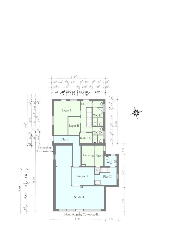
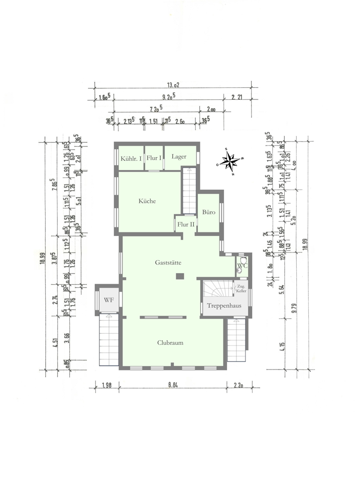
Nutzfläche 299 m²
Zimmer 8
Grundstück 1.378 m²
Ihr Ansprechpartner
Vorname Stefan
Nachname Hungerland
Telefon 0049440393390
E-Mail info@immobilien-friedrichs.de
Kaufpreis 1.390.000 €
Zusatz Mieteinnahmen: 59.856,- € p. a. (netto)
Courtage 7,14 % des Kaufpreises inkl. 19 % MwSt.
Merkmale
Terrassen 1
Balkone 2
Energieausweis
Effizienzklasse H
Energieausweis Bedarf
Endenergiebedarf 285,90 kWh/(m² a)
Energieträger Gas
Beschreibung Bedarfsausweis (Wohnen): 285,9 kWh / Erdgas E / H
Bedarfsausweis (Gewerbe): 672,6 kWh / Erdgas E
SELTENE GELEGENHEIT! Dieses charaktervolle Wohn- und Geschäftshaus (HINWEIS: kein Denkmalschutz!) im Ortskern von Bad Zwischenahn bietet Ihnen eine Gewerbefläche im Hochparterre, in der sich das bekannte und alteingesessene Restaurant „Seekieker“ befindet. Ferner stehen Außenbereiche zur Bewirtung von Restaurantgästen zur Verfügung. In der Souterrainebene befindet sich u.a. ein Tattoo-Studio. Das Ober- bzw. Dachgeschoss umfasst eine großzügige Wohneinheit. Aus Altersgründen endet das Pachtverhältnis des Restaurantbetreibers zum Jahresende 2025. Somit ergeben sich für zukünftige Gastronomiebetreiber ideale Voraussetzungen für eine Eigennutzung bei gleichzeitiger Generierung von zusätzlichen Mieteinkünften. Die freiwerdende Wohnung bietet sich zukünftig zur Eigennutzung bzw. Neuvermietung an.
Auf dem Grundstück ist eine zusätzliche rückwärtige Wohnbebauung möglich.
Weitere Hinweise und Detailinformationen zu den Mietverhältnissen sowie zu den möglichen baulichen Erweiterungen im rückwärtigen Bereich können Sie unserem ausführlichen Exposé entnehmen.
Lage & Beschreibung
PLZ Ort 26160 Bad Zwischenahn
Lage Die Immobilie befindet sich direkt an der Flaniermeile des Kur- und Ferienortes Bad Zwischenahn und besticht durch ihre Meerblicklage gegenüber dem beliebten und stark frequentierten Kurpark, u. a. auch mit Fähranleger. Nutzen Sie diese seltene Gelegenheit als Gastronom oder auch als Kapitalanleger für eine lukrative Vollvermietung!
Ausstattung
Für weitere Beschreibungsmerkmale und Hinweise zu den Mietverhältnissen sowie zu baurechtlichen Möglichkeiten fordern Sie gerne unser ausführliches Exposé an.
Gewerbliche Nutzung 1


info@immobilien-friedrichs.de